上海松江大数据计算中心(二期)备用发电项目采用绿牌30立大流量潜油泵
点击次数:538 更新时间:2025-11-25
松江大数据计算中心(二期)项目是上海市为打造超大规模自主可控智能算力基础设施而部署的政策导向型重大项目,建成后将成为全国算力规模领先的智算中心,为上海夯实数字新基建、培育算力产业集群、加快智慧城市建设提供重要支撑。
一.产品名称:绿牌潜泵
规格型号:YQYB-500-65-7.5
绿牌潜液泵主要技术指标:
1.额定流量:500L/min(30m3/小时);
2.额定扬程:65m;
3.额定功率:7.5kW(10HP);
4.额定电流:18A(50HZ、三相380V电源);
5.额定转速:2850rpm;
6.防爆等级:ExdsⅡBT4 Ga/Gb
7.电机防护等级IP68
8.工作条件:-20℃至+60℃;
9.是否需要换耐寒材料:否
10.是否需要保压:否
11.是否需要换不锈钢材质:否
12.输送介质: 柴油
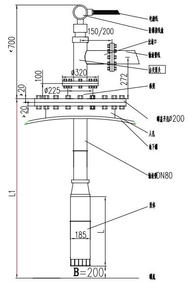
13.外形尺寸:最大外径:Φ185mm;
14.人孔盖开孔直径:200mm



